京都マンション探しNET > 物件詳細

![]()
| 所在地 | 京都市中京区東洞院通蛸薬師下る元竹田町640-1 | ||
|---|---|---|---|
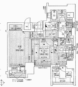
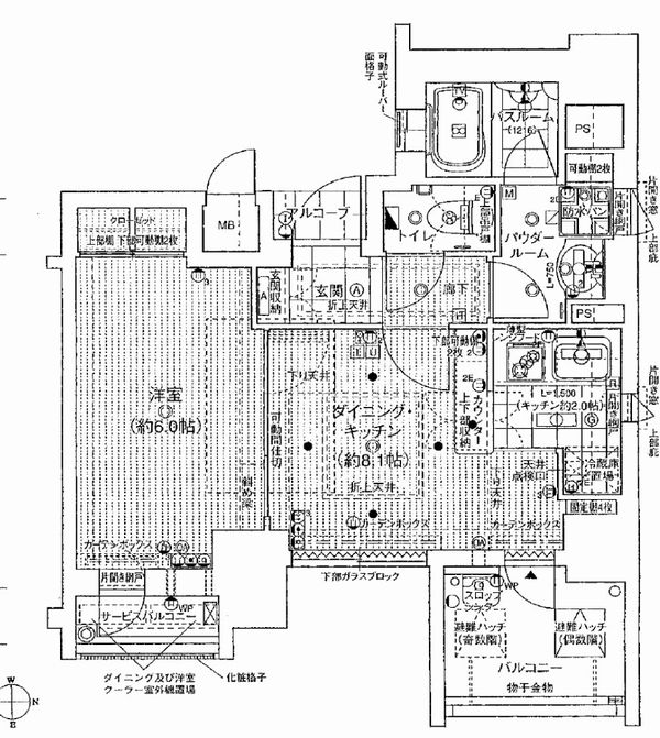
| 交通 | 地下鉄烏丸線 四条駅 2分 | 専有面積 | 35.83u | バルコニー面積 | 4.46u |
| 間取り | 1LDK | 築年月 | 2004年10月 |
| 建物階建/所在階 | 地上11階 / 8階部分 | 総戸数 | 42戸 |
私が担当致します

河島 慎二
![]()
![]()
| バルコニー向き | 南 | ペット可否 | 可 |
|---|---|---|---|
| 現状 | 空家 | 引渡時期 | 即時 |
| 管理費 | 7,950円 | 修繕積立金 | 10,030円 |
| 小学校 | 高倉小学校 | 中学校 | 京都御池中学校 |
| 駐車場 | 無 | 取引態様 | 仲介 |
| 管理人 | 日勤 | 建物構造 | RC |
| 分譲会社 | 日商エステム | ||
| 施工会社 | 鍛冶田工務店 | ||
| 管理会社 | エステム管理サービス | ||
| 備考 | ペット可 | ||
![]()
周辺地図
![]()
![]()
京都マンション探しNET > 物件詳細